江蘇鵬飛集團股份有限公司官網
水泥廠設備故障的應急處理案例
2017-08-10

水泥廠設備故障的應急處理案例

分享到:
水泥生產過程中經常遇到設備突發故障,此時由于未到計劃檢修時間或沒有備件,往往需要對設備故障進行應急處理維持生產的正常運行,以等待計劃停機檢修或備件。本文介紹幾個設備故障應急處理案例,與同行交流探討。
1 MPS5000B立磨輥體磨損后的應急處理
  MPS5000B生料立磨每個磨輥有12塊襯板,擋圈是一個整圈,壓板共24件,每塊襯板由擋圈及2個壓板固定,襯板安裝示意見圖1。



1 磨輥襯板安裝及輥體磨損示意
      2013年7月份,磨機運轉過程中,中控操作員發現磨機振動值及電動機電流稍有升高,但波形出現規律的峰值,并且兩者的峰值基本相對應;到立磨旁邊聽磨機聲音,由于噪音較大基本聽不出什么異常。根據經驗,分析認為是磨輥襯板松動后周期性沖擊磨盤,造成磨機振動及電動機電流出現周期性的峰值。
  利用庫滿停機檢查,發現有一塊磨輥襯板的2條固定螺栓松動,緊固螺栓后用撬杠仍可以撬動襯板。此時分析認為可能是這塊襯板與輥體接觸面處出現較大磨損、變形,襯板固定不牢固。用塞尺測量接觸面A、B處間隙,B處接觸面符合要求,A處有5mm間隙。拆開襯板后發現,該襯板下面的輥體磨去10mm左右,輥體在靠擋圈側及壓板側分別形成寬約5mm及25mm的翻邊(見圖1中翻邊1及翻邊2)。其他11塊襯板及對應的輥體正常。由上述檢查可知,輥體表面的磨損及翻邊造成了襯板固定不牢固。
  按照正常程序修復輥體需要2天,時間不允許,只得應急處理:用氧氣割掉2個翻邊,磨光機修磨接觸面及氣割處毛刺、高點;在A處接觸面墊5mm厚的Q235鋼板(見圖2),長、寬根據具體位置定,使襯板稍向壓板側移動,定位穩固,然后緊固襯板固定螺栓。



2 磨輥襯板應急處理后示意
  經以上處理開機后,磨機振動及電流恢復正常,磨機運轉1天、2天、4天、8天后定時按圖紙要求停機緊固襯板固定螺栓,以后每月檢查緊固螺栓,正常運轉至年底大修,說明上述應急處理是可行的。
2 MPS5000B立磨邊襯板固定螺栓頻繁斷裂的應急處理
  生料立磨工作時,磨盤襯板和邊襯板會發生正常磨損。當邊襯板磨損到Φ57孔時,邊襯板固定螺栓會受損斷裂。此種情況下,若只是更換邊襯板,新邊襯板與磨盤原有襯板表面形狀不一致而形成臺階,立磨開機后易產生振動。為此,我們對固定螺栓損壞的邊襯板現場應急處理,維持邊襯板的使用,具體方法:
  拆除邊襯板螺栓,用磁力鉆平鉆頭將Φ57沉孔鉆深,深度由25mm加深到55mm,螺栓長度由M100縮短到M70(見圖3)。這樣處理后,磨輥及物料摩擦不到邊襯板固定螺栓,生產得以維持正常進行。此方法也可用于新邊襯板安裝時。



3 立磨邊襯板磨損螺栓沉孔加深
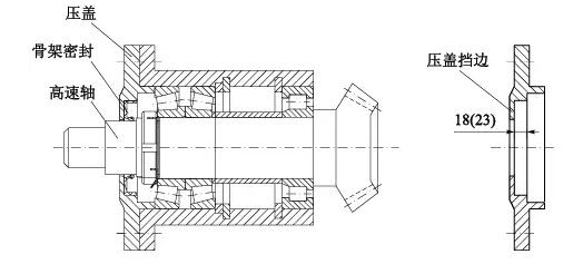
3 皮帶機減速機高速軸漏油的應急處理
  立磨入磨皮帶機運轉過程中,發現減速機高速軸漏油。利用庫滿停機時間拆開高速軸壓蓋,發現骨架密封唇邊磨損,高速軸表面磨損出寬3mm、深0.40mm的溝槽。對此,我們采取應急處理:
  骨架密封厚度15mm,拆下壓蓋用車床將骨架密封擋邊車薄5mm,壓蓋密封槽深度由18mm加深到23mm(見圖4)。此法使得骨架密封在高速軸上的安裝位置向外移動5mm,避開高速軸上的溝槽。經此處理,解決了漏油問題,可以正常生產,等到計劃檢修停機時,再徹底處理高速軸上的溝槽。 



4 皮帶機減速機高速軸的密封
4 預熱器旋風筒錐體測壓管負壓低的處理
  5000t/d生產線雙系列五級預熱器的C5旋風筒錐體負壓一般是-2200Pa,運行中發現,C5A負壓正常,C5B負壓-800Pa左右且波動較大,C5A及C5B旋風筒溫度等正常。檢查測壓管路后拆下測壓管路上的絲堵,用鋼筋捅原Φ32鋼管內部后,C5B負壓達到-1300Pa左右,但短時間后負壓又降低。分析認為,是原鋼管局部磨透后被物料部分堵塞,造成負壓偏低。
  常規解決方法是打掉原Φ32鋼管周圍澆注料后更換原Φ32鋼管,這需要長時間停窯。我們采取了應急處理:
  拆下四通及法蘭,在Φ32鋼管內部套裝Φ25鋼管,Φ25鋼管上端與法蘭焊接,下端與原Φ32筒平齊(見圖5)。這樣處理后,預熱器C5B旋風筒負壓正常。



5 旋風筒錐體測壓示意
上一篇:石灰回轉窯烘窯操作規程
下一篇:立磨運行的常見問題以及解決方案
亚洲福利视频