江蘇鵬飛集團股份有限公司官網
小型輥壓機聯合粉磨系統改為半終粉磨系統的經驗
2018-12-22

小型輥壓機聯合粉磨系統改為半終粉磨系統的經驗

分享到:
某公司有一條2500t/d生產線,由GLF140-65輥壓機+Φ3.8m×13m球磨機組成雙閉路聯合水泥粉磨系統。該公司于2014年2月將水泥磨聯合粉磨工藝改為水泥磨半終粉磨工藝,取得了較好的增產節能效果。
1 技改前的基本情況
1.1 工藝流程及主機設備參數
  改造前粉磨系統工藝流程見圖1,主機設備參數見表1。
圖1 改造前雙閉路聯合粉磨系統工藝流程示意
表1 技改前主機設備參數
1.2 存在的主要問題
  1)細粉分離器入磨物料中存在20%~30%的≤30μm的合格品,在磨內產生過粉磨現象,降低了磨機的粉磨效率。
  2)物料0.08mm篩篩余從磨頭的20.98%到磨尾的8.12%,只降低了13%;比表面積從磨頭的135m2/kg到磨尾的156m2/kg,只增加了21m2/kg,顯然粉磨效率比較低。
2 改造過程
2.1 基本思路
  在保證水泥質量的前提下,將預粉磨系統中的部分合格細粉通過選粉機分選出來,直接通過斜槽輸送入水泥庫,即改為半終粉磨工藝。根據其他廠家的經驗,采取半終粉磨工藝時,輥壓機的裝機功率與磨機裝機功率之比>0.6,而該系統中輥壓機的裝機功率與磨機裝機功率之比只有0.357。因此,采取半終粉磨工藝的困難是比較大的。經過考察磨內改造成功案例,確定通過提高磨機的粉磨效率來彌補系統中輥壓機的裝機功率與磨機裝機功率比偏低的問題。
2.2 具體措施
2.2.1 在V型選粉機出口增加高效選粉機
  1)新增的TS2500型高效選粉機:處理風量150000m3/h,最大處理量270t/h,產量30~90t/h,電動機功率45kW,主軸轉速120~230r/min。 
  2)將輥壓機擠壓出的物料經V型選粉機分級打散后,>200μm的物料返回輥壓機重新擠壓,<200μm的物料經TS2500型高效選粉機將<32μm的物料從預粉磨系統中分離出來,進入細粉分離器,收集下來的成品通過斜槽與磨機出來的成品混合后入水泥庫;32~200μm的物料進入球磨系統繼續粉磨至成品。
2.2.2 對輥壓機系統進行優化
  1)輥壓機進料增加雙板自動喂料裝置,穩定入輥壓機物料流量。
  2)V型選粉機物料入口增加均料板,提高V型選粉機分級效率。
  3)更換原粉磨系統的循環風機。原有循環風機的風壓不能滿足需要,遂改為處理風量170000m3/h、全壓5000Pa、電動機功率315kW的風機。
  4)增加空氣輸送斜槽,將細粉分離器選出的水泥成品匯入該斜槽,經提升機入水泥庫。
2.2.3 對水泥磨磨內進行改造
  經調查,粉磨系統進行半終粉磨工藝改造后,入磨物料0.045mm篩篩余由改造前的30%~40%增大到70%左右,無疑就要增大磨機粉磨的壓力,如果不能有效提高磨機的粉磨效率就會“對沖”半終粉磨的增產效果。改造前磨內結構主要存在以下問題:
  1)隔倉板篦板篦縫及出料篦板篦縫堵塞,嚴重影響磨機的通風過料。
  2)同等風量時,隔倉板中心部位風速較高,造成大量未經充分研磨的粗顆粒物料進入后倉,同時在隔倉板附近形成“低效研磨區”, 降低磨機粉磨效率。
  3)由于隔倉板過料能力不均衡,造成球料比不合理,降低了磨機的粉磨效率。
  4)Ⅱ倉研磨體分布不合理,微細粉磨效率低。
  為此,我們采用FST高產微細水泥磨技術對磨內進行改造,將二倉磨改為三倉磨機,進一步細化研磨體的粉磨功能,提高粉磨效率。
  采取的措施:
  1)采用FST防堵塞篦板。該篦板由粗篩板和細篩板組合而成。粗篩板篦縫的寬度和細篩板篩縫寬度根據磨機工藝條件及研磨體尺寸確定,見圖 2。
圖2 FST防堵塞篦板結構示意
  2)采用FST均風穩流隔倉板,見圖3。
圖3 FST型均風穩流隔倉板示意
      該隔倉板是在進料端篦板與隔倉板骨架間設置均風穩流板和均風穩流器,這樣在磨機中通過隔倉板的物料量大量增加的情況下,前后隔倉板的物料流速達到均衡,利于保持合理的球料比。在骨架中導料錐的作用下,物料沿導料錐隨磨機的旋轉以遠低于風速的速度流入后倉,消除隔倉板附近的“低效研磨區”。
2.2.4 調整研磨體級配
  改造后磨機Ⅰ倉和Ⅱ倉仍然使用鋼球,Ⅲ倉使用微段。改造前后研磨體級配見表2。
表2 改造前后磨內研磨體級配
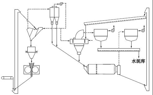
2.3 改造后的工藝流程
  改造后半終粉磨工藝流程見圖4。

圖4 改造后半終粉磨系統工藝流程示意
2.4 調試過程中發生的問題及解決措施
  1)優化操作工藝參數。改造后的操作參數必須按照新工藝條件進行優化探索。為此,對輥壓機的電動機電流、新選粉機轉速、磨機主機電流、磨尾風機轉速、磨尾提升機電流和研磨體裝載量等工藝參數進行了優化。
  2)對系統內物料進行大量的取樣分析。原本磨尾袋除塵器收下的細粉是直接入庫,但改造后磨尾風機轉速提高,出磨水泥細度急劇變粗,對系統綜合樣影響嚴重,為此,將此部分物料改入出磨提升機再進磨機進行粉磨,從而降低了選粉機的轉數,穩定了成品水泥的質量。新增的TS2500高效選粉機在生產中經常出現堵料事故,尤其是當混合材水分偏高時,這種現象更為嚴重。經綜合考察決定,將選粉機錐部管道角度由原來的50°改大為55°;選粉機粗粉入磨管道的簾式鎖風閥由原來的兩只改為一只并放在匯總管上;在旋風筒收集下來的斜槽上增加一個斜槽風機。改后徹底解決了堵料問題,減少了停機的次數,保證了磨機的連續運轉。
3 技改效果
  技改完成后,經過3~5月份的調試和調整,磨機系統逐步穩定提高,經6月全月考核實現水泥磨機生產P·O42.5水泥臺時產量達到141.38t/h、工序電耗29.87kWh/t,實現了技改目標,見表3。
表3 改造前后技術經濟指標對比

  改造前后磨機的粉磨效率有了較大的提高,其篩余曲線見圖5,比表面積曲線見圖6。

圖5 磨機改造前后磨內物料篩余對比

圖6 磨機改造前后磨內物料比表面積對比
4 體會和認識
  1)新增的高效選粉機及循環風機的選型、技術參數要合理。
  2)提高磨內粉磨效率至關重要。否則會“對沖”改為半終粉磨工藝所增加的產能。
  3)要探索在新的工藝條件下設備的合理工藝技術參數,實現系統產質量最優化。
  4)在輥壓機裝機功率與磨機裝機功率之比<0.6,特別是像該公司的比值只有0.357的情況下,通過磨內改造提高粉磨效率,改為半終粉磨工藝是可以實現較好的增產節能效果的。
  5)P·O42.5水泥質量除標準稠度用水量有所增加外,強度等指標基本沒有變化。下一步還需要進行在半終粉磨工藝條件下降低P·O42.5水泥標準稠度用水量的探索和研究。
作者單位:浙江南方水泥有限公司
 
上一篇:石灰石煅燒工藝大揭秘
下一篇:立磨的巡檢與維護
亚洲福利视频